Brognoli > Imóveis para comprar

Terrenos Residenciais com 200m², no bairro Armação Do Pântano Do Sul em Florianópolis Estrada Francisco Thomas dos Santos - Armação Do Pântano Do Sul - Florianópolis, SC

  • 200m²

Descrição do imóvel

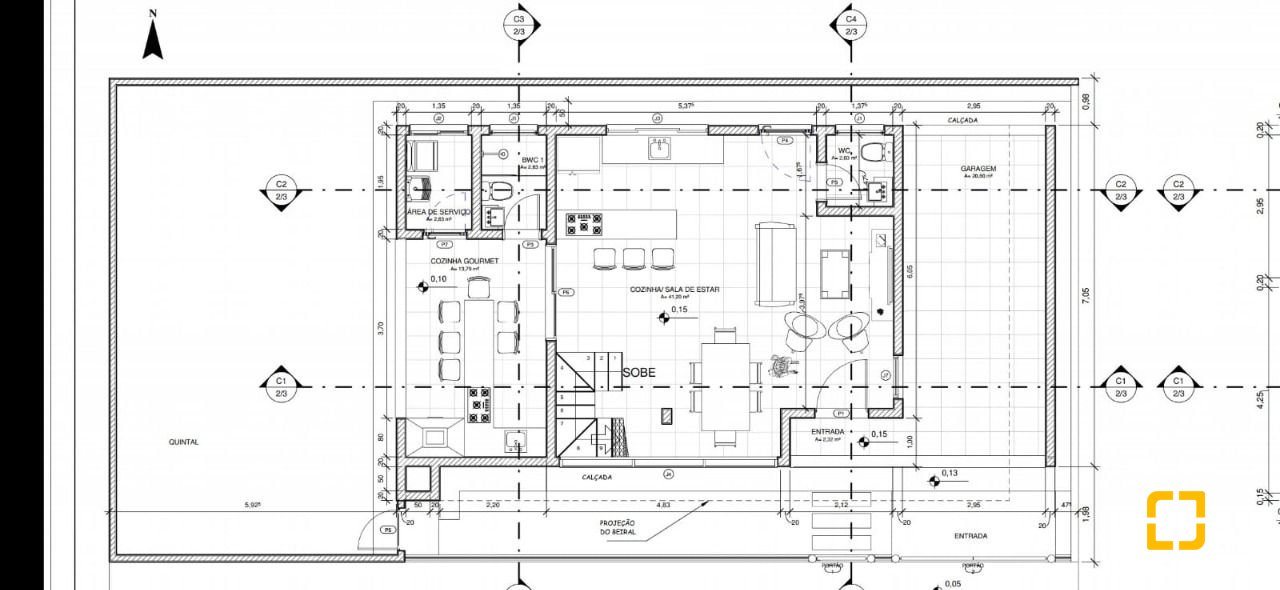
Terreno à venda na Armação com 200m² de área total 20X10. Apenas 40 metros da praia, com casa em construção com 2 pavimentos, sendo 1º pavimento com área gourmet, banheiro, área de serviço, sala de estar, hall e o segundo banheiro social. No 2º pavimento, 3 quartos, sendo 1 suite máster com closet e banheiro social.

Garagem coberta e quintal

Servidão tranquila e familiar.

Rodeado por natureza com lindas praias e trilhas, próximo de todo o comércio local, além do fácil acesso ao Aeroporto e Centro da cidade.

* Imóvel não aceita financiamento, contrato do compra e venda com mais de 20 anos.
* IPTU individualizado
* Proprietária estuda permuta como parte de pagamento.
* Construção não averbada.

Marque sua visita e garanta seu imóvel
Rodrigo Varella
CRECI/SC 59.383F
48 98832-9624
rodrigovarellacorretor@gmail.com


Código do imóvel: 56448

Imóveis Visitados para Comprar

WhatsApp